Oswego County Tax Foreclosed Real Estate Auction. ALL BIDS PLACED AT MAX BID.
90 Tax Foreclosed Properties: Waterfront, Camps, Single Family Homes, Multi-Family Homes, Vacant Land and Commercial Properties REGISTRATION WILL CLOSE ON WEDNESDAY, OCTOBER 20, 2021 at 11:00 A.M. APPLICATIONS WILL NOT BE ACCEPTED AFTER DEADLINE. 90 Tax Foreclosed Properties: Waterfront, Camps, Single Family Homes, Multi-Family Homes, Vacant Land and Commercial Properties. ALL BIDS ARE PLACED AT MAX BID. This means whatever bid submitted with be entered as the current high bid.
Begins: Thursday, Sep 23, 2021, 9:00AM EST
Location: 46 E. Bridge St., Oswego, NY 13126
Preview: Inspection: Drive or Walk Vacant Properties at your Risk Anytime. Do Not Enter Interior of Any Property. Please do not go on properties that appear occupied.
REGISTRATION IS NOW CLOSED FOR THIS AUCTION.
PLEASE CLICK MORE LOT INFO FOR IMPORTANT INFORMATION AND ADDITIONAL PICTURES.
Catalog | Register | Terms
Addendum A - Auction Terms & Conditions
Addendum B - Lead Based Paint Disclosure
Addendum B.1 - Lead Based Paint Booklet
Addendum C - NYS Agency Relationship Disclosure
Addendum D - NYS Anti-Discrimination Disclosure
Addendum E - Fair Housing Guide
Addendum G - TP-584 Corporation Disclosure
Auction Brochure
Withdrawn Property List as of 9-22
Buyer Due Diligence 2021
Categories
High Bid:
$6,500.00 – pk
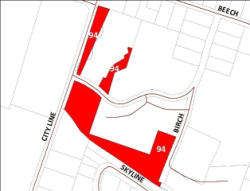
SBL: 129.13-01-20.01
Swiss Code:
Property Class Code: 330
Property Class Description: F. Commercial
Lot Size: 5.45 Acres +/-
Assessed Value: $ 50,000.00
Annual Taxes: $1,647.02 +/-
School District: Oswego
Inspection: DRIVE BY ANYTIME
SEE ONLINE BIDDER REGISTRATION APPLICATION FOR MORE INFORMATION
Swiss Code:
Property Class Code: 330
Property Class Description: F. Commercial
Lot Size: 5.45 Acres +/-
Assessed Value: $ 50,000.00
Annual Taxes: $1,647.02 +/-
School District: Oswego
Inspection: DRIVE BY ANYTIME
SEE ONLINE BIDDER REGISTRATION APPLICATION FOR MORE INFORMATION
More Details
SBL: 129.13-01-20.01
Swiss Code:
Property Class Code: 330
Property Class Description: F. Commercial
Lot Size: 5.45 Acres +/-
Assessed Value: $ 50,000.00
Annual Taxes: $1,647.02 +/-
School District: Oswego
Inspection: DRIVE BY ANYTIME
SEE ONLINE BIDDER REGISTRATION APPLICATION FOR MORE INFORMATION
Location: City Line Road, Scriba NY,
Contact Agent: Fed ID # 15-6000463
Swiss Code:
Property Class Code: 330
Property Class Description: F. Commercial
Lot Size: 5.45 Acres +/-
Assessed Value: $ 50,000.00
Annual Taxes: $1,647.02 +/-
School District: Oswego
Inspection: DRIVE BY ANYTIME
SEE ONLINE BIDDER REGISTRATION APPLICATION FOR MORE INFORMATION
Location: City Line Road, Scriba NY,
Contact Agent: Fed ID # 15-6000463